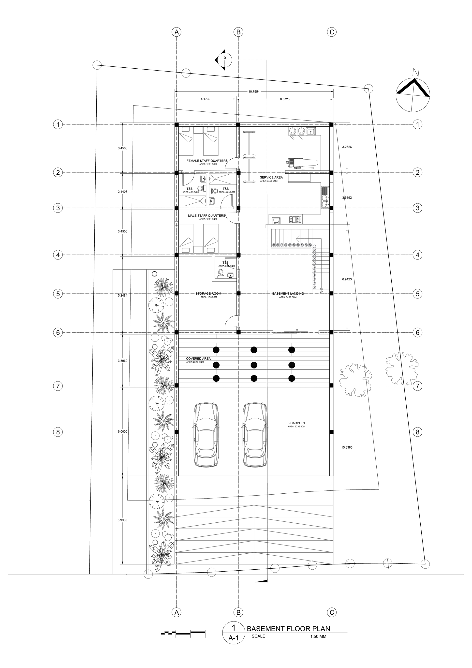
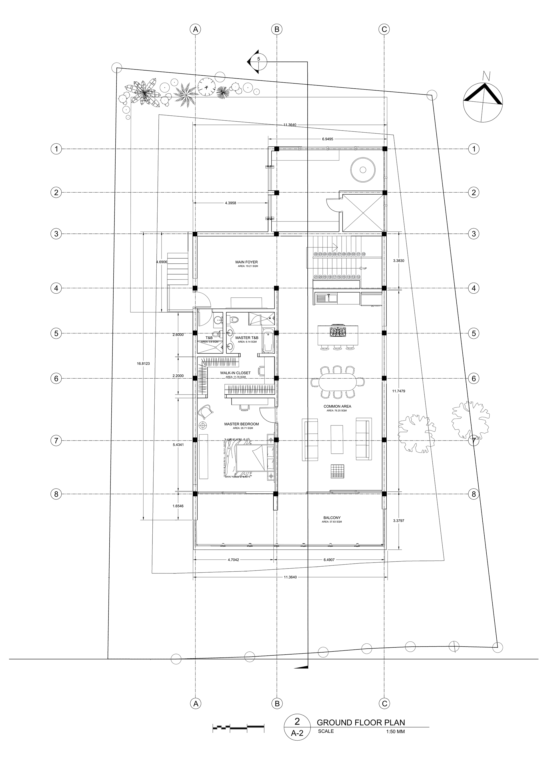
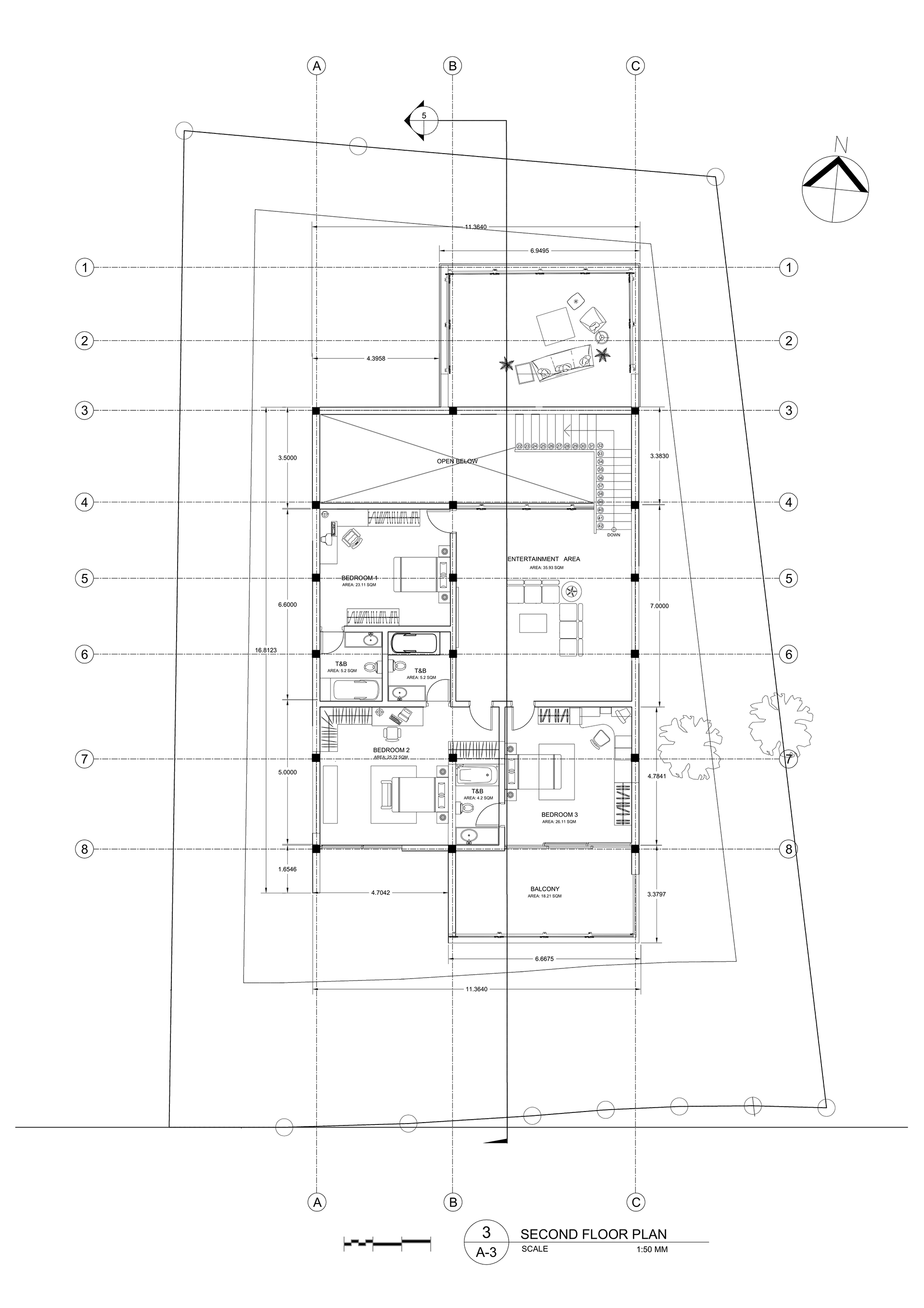
The Mango Villa is a Green Vacation Home Proposal in Anvaya Cove for Architectural Design 03 in De La Salle, College of Saint Benilde by Juaquin Pineda, mentored by Ian Matthew Go. The project brief consists of designing for a family of 5, with specific client specifications, spatial requirements and topographical conditions.